Entwurf, Architektur, Umsetzung.
Ihre Vision wird Wirklichkeit!
Mit kreativen Ideen und Sachverstand, schaffen wir eindrucksvolle Realitäten! Als erfahrener Meister im Malerhandwerk mit über30 Jahren Branchenerfahrung und einem fundierten Architekturstudium an der THM Gießen stehe ich Ihnen als Ihr vertrauenswürdiger Partner zur Seite.
Von der ersten Skizze bis zum letzten Pinselstrich:
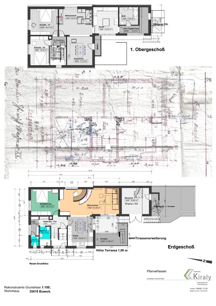
Ich entwerfe und erarbeite individuelle Grundrisse für Ihr Bauvorhaben wie Umbauten, Dachgeschossausbau, Neubauten, Bäder, Küchen und vieles mehr. Mithilfe hochwertiger Computervisualisierungen erhalten Sie bereits einen Vorgeschmack auf Ihr zukünftiges Zuhause! Wir wollen, dass Sie alles gut verstehen, um so besser entscheiden können. Technische und energetische Aspekte werden ebenfalls genau geprüft und effizient umgesetzt.
Bauleitung und koordination:
Als Ihr persönlicher Bauleiter übernehme ich die umfassende Gesamtleitung und Koordinierung sämtlicher Arbeiten – von Grundrissplanungen bis zur schlüsselfertigen Übergabe. Verlassen Sie sich auf meine Zuverlässigkeit und mein Engagement bei der Handwerkerkoordinierung sowie der qualitätsorientierten Bauführung.
Erfahrung:
Durch meiner langjährigen Erfahrung in der Altbausanierung und energetischen Analyse von Bestandsgebäuden können Sie sicher sein, dass Ihr Projekt in den besten Händen liegt. Die energetischen Aspekte von Bestandsgebäuden erkläre ich Ihnen gerne.
Verpassen Sie nicht die Chance, Ihr Zuhause in ein architektonisches Meisterwerk zu verwandeln! Vertrauen Sie auf meine Expertise, um Ihr Bauvorhaben zu einem einzigartigen und kosteneffizienten Erlebnis zu machen.
Kontaktieren Sie mich noch heute und lassen Sie uns gemeinsam Ihre Träume verwirklichen!
Bauen im Bestand stellt besondere Anforderungen: Bestehende Strukturen müssen erkannt, erhalten und sinnvoll weiterentwickelt werden. Das erfordert nicht nur technisches Know-how, sondern auch ein feines Gespür für Architektur und Substanz.
Wir begleiten Sie – Schritt für Schritt
Bei Andreas Kiraly – Architektur Form & Farben in Buseck stehen wir Ihnen mit langjähriger Erfahrung und persönlichem Engagement zur Seite.
Ob sorgfältige Bestandsaufnahme, bauliche Veränderungen, statische Eingriffe (z. B. bei Wanddurchbrüchen) oder energetische Optimierungen – wir denken in Lösungen, die zum Bestand und zu Ihrer Vision passen.
Der Charakter bleibt – die Nutzung wird neu gedacht
Unser Ziel ist es, den einzigartigen Charakter Ihres Gebäudes zu bewahren und ihn zugleich behutsam in ein zukunftsfähiges Nutzungskonzept zu überführen.
Dabei legen wir besonderen Wert auf eine vertrauensvolle, partnerschaftliche Zusammenarbeit – transparent, ehrlich und auf Augenhöhe.
Gemeinsam zum besten Ergebnis
Gestalten wir Ihr Projekt gemeinsam – mit Fachkompetenz, Leidenschaft und dem Blick fürs Wesentliche.
Wir freuen uns darauf, Sie kennenzulernen.












